Tu casa empieza en un papel… y en tus sueños 

Diseño planos desde cero, pensando en cada detalle para que tu hogar sea funcional, único y con tu estilo personal.
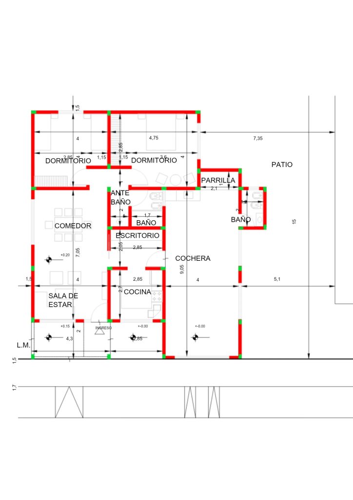
Cada espacio se adapta a las actividades y rutinas de tu familia, para que la casa no solo sea linda, sino que realmente acompañe su manera de vivir, trabajar, descansar y compartir.

Y sumamos diseño y personalidad, para que se sienta tuyo desde el primer trazo.
No se trata solo de planos ni de medidas, sino de proyectar el lugar donde crecerán tus ideas, tus proyectos y tus recuerdos. 

Soñalo, lo diseñamos juntos y lo hacemos realidad.


